Bydgoszcz, Okole

Mieszkanie na sprzedaż

Opis nieruchomości

LIBERA Nieruchomości zaprasza serdecznie do zapoznania się z ofertą mieszkania  o powierzchni 79,5 m2 z dwoma tarasami  (15,76 m2 i 6,91 m2). Mieszkanie zlokalizowane jest w nowoczesnym i eleganckim budynku usytuowanym w otoczeniu wody i zieleni, z atrakcyjnym widokiem i w dobrej lokalizacji.

Nowoczesny desing w połączeniu z wysokiej jakości materiałami wykończeniowymi sprawią, że będzie to doskonałe miejsce do zamieszkania. Dużym atutem jest lokalizacja - cicha i spokojna część bydgoskiego Okola. 

Budynek posiada cztery kondygnacje naziemne wraz z parterem oraz jedną kondygnację podziemną. W sumie 23 lokale 2, 3 i 4 pokojowe. Na ostatniej kondygnacji znajdują się mieszkania z antresolami i tarasami z pięknym widokiem na panoramę miasta. Pod budynkiem znajduje się hala garażowa z miejscami parkingowymi w cenie 30.000zł każde i komórki lokatorskie – w cenie mieszkania.  


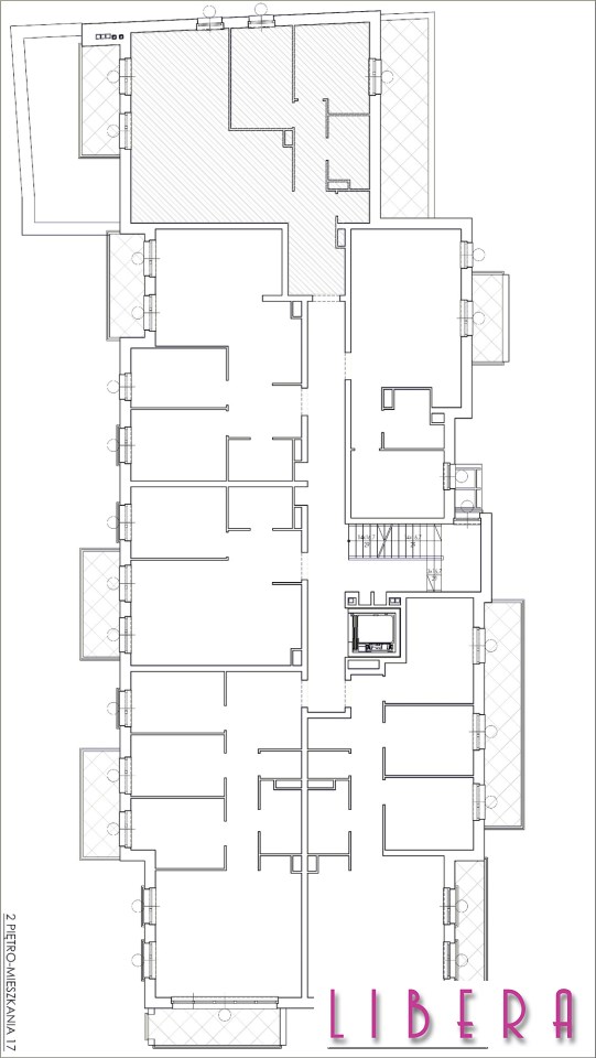
Przedmiotem oferty jest trzypokojowy lokal położony na trzecim piętrze w  nowocześnie zaprojektowanym budynku wielorodzinnym. 

Mieszkanie się składa z:
- pokoju  z aneksem kuchennym (40,30m2) z wyjściem na balkon (6,91m2),
- dwóch sypialni (10,1m2 i 10,2m2), 
- łazienki (4,3m2),
- przestronnego przedpokoju (13m2).
Mieszkanie jest bardzo funkcjonalne i jasne.

Teren obiektu ogrodzony z zejściem na teren rekreacyjny dostępny dla właścicieli nieruchomości. Idealnie wykorzystano lokalizację, gdyż w przyszłości miasto Bydgoszcz planuje wybudowanie tutaj bulwaru.

W sąsiedztwie znajduje się komunikacja miejska (tramwaj, autobus), kino, opera, galeria handlowa, uczelnia wyższa, a także basen. W pobliżu także dworzec PKP.  Spacer od centrum miasta zajmuje zaledwie 20 minut.

Inwestycja jest ukończona, mieszkanie gotowe do sprzedaży.

W budynku zainstalowano nowoczesną  cichobieżną  windę. 
Ogrzewanie gazowe z sieci miejskiej - wspólna kotłownia dla całego  budynku.



Zapraszam serdecznie na prezentacje oraz do zapoznania się z dostępnymi w naszym biurze inwestycjami deweloperskimi.


Oferta z rynku pierwotnego.
Klient Kupujący nie płaci podatku pcc (2% wartości nieruchomości) i nie ponosi kosztów wynagrodzenia biura. 

 

Oferta aktualna, sprawdzona pod kątem prawnym i przygotowana do sprzedaży.

Zgodnie z obowiązującymi przepisami developer do aktu notarialnego przenoszącego własność nieruchomości dołączy świadectwo energetyczne. 

 

Sylwia Florjańczyk
agentka nieruchomości
telefon 577 988 188

Atrakcyjne oferty nieruchomości, wszelkie formalności, a także korzystne kredyty na ich zakup – wszystko w jednym miejscu – LIBERA Nieruchomości. Zapraszamy serdecznie do siedziby naszego biura w Bydgoszczy przy ul. Ostroroga 13.


LIBERA Nieruchomości Sabina Libera – jestem członkiem Polskiej Federacji Rynku Nieruchomości (PFRN) i  Warszawskiego i Wielkopolskiego  Stowarzyszenia Pośredników w Obrocie Nieruchomościami (WSPON).

Nota prawna

Opis oferty zawarty na stronie internetowej sporządzany jest na podstawie oględzin nieruchomości oraz informacji uzyskanych od właściciela, może podlegać aktualizacji i nie stanowi oferty określonej w art. 66 i następnych Kodeksu cywilnego.

Szczegóły oferty

Symbol oferty LIB-MS-1198
Powierzchnia 79,50 m²
Powierzchnia użytkowa 79,50 m²
Powierzchnia balkonów/tarasów 23,00 m²
Liczba pokoi 3
Piętro 3
Rodzaj budynku apartamentowiec
Standard
Liczba pięter w budynku 4
Garaż garaż podziemny
Stan lokalu deweloperski
Stan prawny Własność
Okna PCV
Instalacje nowe
Balkon brak
Liczba tarasów 2
Rok budowy 2023
Widok na inne budynki
Gaz tak - miejski
Woda ciepła - miejska
Dojazd asfalt
Otoczenie centrum miasta
Ogrzewanie centralne
Odległość do komunikacji publicznej [m] 400 m
Odl. do sklepu [m] 200 m
Odl. do szkoły [m] 240 m
Odl. do przedszkola [m] 600 m
Winda tak
Tarasy taras
Usytuowanie trójstronne
Drzwi antywłamaniowe tak

Pomieszczenia

Powierzchnia pokoi 40,3 x 10,20 x 10,10 m2
Podłogi pokoi wylewka
Typ kuchni aneks kuchenny połączony z jadalnią i salonem
Rodzaj kuchni aneks kuchenny - połączony z jadalnią
Podłoga kuchni wylewka
Typ łazienki razem z wc
Liczba łazienek 1
Powierzchnia łazienki 4,30 m2
Glazura łazienki bez glazury
Podłoga łazienki wylewka
Liczba WC 1
Powierzchnia WC 1,6 m2
Glazura WC bez glazury
Podłoga WC wylewka
Liczba przedpokoi 1
Powierzchnia przedpokoi 13 m2
Podłoga przedpokoi wylewka

Lokalizacja

Kalkulator kredytowy

PLN
%
Wysokość raty

Kalkulator kosztów

PLN
PLN
PLN
PLN
PLN
PLN
%
PLN
Podatek od czynności cywilno-prawnych
Taksa notarialna (opłata notarialna)
VAT od taksy notarialnej (opłaty notarialnej)
Wniosek do WKW
VAT od wniosku do WKW
Prowizja agencji nieruchomości
VAT od prowizji agencji nieruchomości
Wypisy aktu notarialnego - około
RAZEM (cena + opłaty)

Podobne oferty

mieszkanie na sprzedaż - Bydgoszcz, Bartodzieje

mieszkanie na sprzedaż

Bydgoszcz, Bartodzieje
4 pokoje 78,73 m2 8 449,99 zł/m2
mieszkanie na sprzedaż - Bydgoszcz, Bartodzieje

mieszkanie na sprzedaż

Bydgoszcz, Bartodzieje
4 pokoje 84,66 m2 8 632,00 zł/m2
mieszkanie na sprzedaż - Bydgoszcz, Bartodzieje

mieszkanie na sprzedaż

Bydgoszcz, Bartodzieje
3 pokoje 75,00 m2 9 500,00 zł/m2
bez prowizji
mieszkanie na sprzedaż - Bydgoszcz, Okole

mieszkanie na sprzedaż

Bydgoszcz, Okole
2 pokoje 55,20 m2 11 600,00 zł/m2

Napisz do nas

Proszę wypełnić to pole
Proszę wypełnić to pole
Proszę wypełnić to pole
Proszę wypełnić to pole
Trwa wysyłanie...

Ta strona wykorzystuje pliki cookies w celach statystycznych oraz w celu dostosowania naszych serwisów do indywidualnych potrzeb klientów. Zmiany ustawień dotyczących plików cookie można dokonać w dowolnej chwili modyfikując ustawienia przeglądarki. Korzystanie z tej strony bez zmian ustawień dotyczących cookies oznacza, że będą one zapisane w pamięci urządzenia.

rozumiem