Bydgoszcz, Okole

Mieszkanie na sprzedaż

Opis nieruchomości

LIBERA Nieruchomości zaprasza serdecznie do zapoznania się z ofertą sprzedaży mieszkania o powierzchni 82,20m2 z dwoma tarasami  (13,65m2 i 7,46m2). Mieszkanie w nowoczesnym i eleganckim budynku, usytuowanym w otoczeniu wody i zieleni, z atrakcyjnym widokiem i w dobrej lokalizacji.

Nowoczesny desing w połączeniu z wysokiej jakości materiałami wykończeniowymi sprawią, że będzie to doskonałe miejsce do zamieszkania. Dużym atutem jest lokalizacja - cicha i spokojna część bydgoskiego Okola. 

Budynek posiada cztery kondygnacje naziemne wraz z parterem oraz jedną kondygnację podziemną. W sumie 23 lokale 2, 3 i 4 pokojowe. Na ostatniej kondygnacji znajdują się mieszkania z antresolami i tarasami z pięknym widokiem na panoramę miasta. Pod budynkiem znajduje się hala garażowa z miejscami parkingowymi w cenie 30.000zł każde i komórki lokatorskie – w cenie mieszkania.  


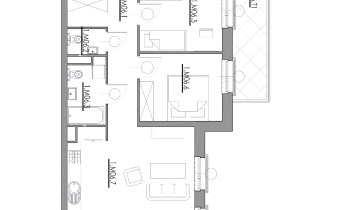
Przedmiotem oferty jest czteropokojowy apartament, w stanie developerskim, położony na pierwszym piętrze
Składa się z:
- pokoju  z aneksem kuchennym (31,10m2), z wyjściem na mniejszy taras (7,46 m2),
- trzech sypialni (13 / 10,1  i 10,50m2), 
- łazienki (4,5m2),
- osobnego WC (1,8 m2),
- przestronnego przedpokoju (11,20 m2).
Mieszkanie jest bardzo funkcjonalne i jasne.

Teren obiektu ogrodzony z zejściem na teren rekreacyjny dostępny dla właścicieli nieruchomości. Idealnie wykorzystano lokalizację, gdyż w przyszłości miasto planuje wybudowanie tutaj bulwaru.

W sąsiedztwie znajdują się przystanki komunikacji miejskiej (tramwaj, autobus), kino, opera, galeria handlowa, uczelnia wyższa, a także basen. W pobliżu  dworzec główny PKP.  Spacer od centrum miasta zajmuje zaledwie 20 minut.

Inwestycja jest ukończona, mieszkanie gotowe do sprzedaży.

W budynku zainstalowano nowoczesną  cichobieżną  windę. 

Ogrzewanie gazowe z sieci miejskiej - wspólna kotłownia dla całego  budynku.



Zapraszam serdecznie na prezentacje oraz do zapoznania się z dostępnymi w naszym biurze inwestycjami deweloperskimi.


Oferta z rynku pierwotnego.
Klient Kupujący nie płaci podatku pcc (2% wartości nieruchomości) i nie ponosi kosztów wynagrodzenia biura. 

 

Oferta aktualna, sprawdzona pod kątem prawnym i przygotowana do sprzedaży.

Zgodnie z obowiązującymi przepisami developer do aktu notarialnego przenoszącego własność nieruchomości dołączy świadectwo energetyczne. 

 

Sylwia Florjańczyk
agentka nieruchomości
telefon 577 988 188

Atrakcyjne oferty nieruchomości, wszelkie formalności, a także korzystne kredyty na ich zakup – wszystko w jednym miejscu – LIBERA Nieruchomości. Zapraszamy serdecznie do siedziby naszego biura w Bydgoszczy przy ul. Ostroroga 13.


LIBERA Nieruchomości
Sabina Libera – jestem członkiem Polskiej Federacji Rynku Nieruchomości (PFRN), poznańskiego  i warszawskiego Stowarzyszenia Pośredników w Obrocie Nieruchomościami (WSPON).

Nota prawna

Opis oferty zawarty na stronie internetowej sporządzany jest na podstawie oględzin nieruchomości oraz informacji uzyskanych od właściciela, może podlegać aktualizacji i nie stanowi oferty określonej w art. 66 i następnych Kodeksu cywilnego.

Szczegóły oferty

Symbol oferty LIB-MS-1197
Powierzchnia 82,20 m²
Powierzchnia użytkowa 82,20 m²
Powierzchnia balkonów/tarasów 14,40 m²
Liczba pokoi 4
Piętro 1
Rodzaj budynku apartamentowiec
Standard
Liczba pięter w budynku 4
Garaż garaż podziemny
Stan lokalu deweloperski
Stan prawny Własność
Okna PCV
Instalacje nowe
Balkon brak
Liczba tarasów 2
Rok budowy 2023
Widok na inne budynki
Gaz tak - miejski
Woda ciepła - miejska
Dojazd asfalt
Otoczenie centrum miasta
Ogrzewanie centralne
Odległość do komunikacji publicznej [m] 400 m
Odl. do sklepu [m] 200 m
Odl. do szkoły [m] 240 m
Odl. do przedszkola [m] 600 m
Winda tak
Tarasy taras
Usytuowanie trójstronne
Drzwi antywłamaniowe tak

Pomieszczenia

Powierzchnia pokoi 31,3 x 13 x 10,5 x 10,1 m2
Podłogi pokoi wylewka
Typ kuchni aneks kuchenny połączony z jadalnią i salonem
Rodzaj kuchni aneks kuchenny - połączony z jadalnią
Podłoga kuchni wylewka
Typ łazienki razem z wc
Liczba łazienek 1
Powierzchnia łazienki 4,30 m2
Glazura łazienki bez glazury
Podłoga łazienki wylewka
Liczba WC 1
Powierzchnia WC 1,8 m2
Glazura WC bez glazury
Podłoga WC wylewka
Liczba przedpokoi 1
Powierzchnia przedpokoi 11,2 m2
Podłoga przedpokoi wylewka

Lokalizacja

Kalkulator kredytowy

PLN
%
Wysokość raty

Kalkulator kosztów

PLN
PLN
PLN
PLN
PLN
PLN
%
PLN
Podatek od czynności cywilno-prawnych
Taksa notarialna (opłata notarialna)
VAT od taksy notarialnej (opłaty notarialnej)
Wniosek do WKW
VAT od wniosku do WKW
Prowizja agencji nieruchomości
VAT od prowizji agencji nieruchomości
Wypisy aktu notarialnego - około
RAZEM (cena + opłaty)

Podobne oferty

bez prowizji
mieszkanie na sprzedaż - Bydgoszcz, Okole

mieszkanie na sprzedaż

Bydgoszcz, Okole
3 pokoje 79,50 m2 11 308,18 zł/m2
mieszkanie na sprzedaż - Bydgoszcz, Flisy

mieszkanie na sprzedaż

Bydgoszcz, Flisy
5 pokoi 82,00 m2 10 000,00 zł/m2
oferta na wyłączność
mieszkanie na sprzedaż - Bydgoszcz, Śródmieście

mieszkanie na sprzedaż

Bydgoszcz, Śródmieście
3 pokoje 78,67 m2 10 804,63 zł/m2
bez prowizji
mieszkanie na sprzedaż - Bydgoszcz, Bielawy

mieszkanie na sprzedaż

Bydgoszcz, Bielawy
3 pokoje 59,69 m2 15 061,15 zł/m2

Napisz do nas

Proszę wypełnić to pole
Proszę wypełnić to pole
Proszę wypełnić to pole
Proszę wypełnić to pole
Trwa wysyłanie...

Ta strona wykorzystuje pliki cookies w celach statystycznych oraz w celu dostosowania naszych serwisów do indywidualnych potrzeb klientów. Zmiany ustawień dotyczących plików cookie można dokonać w dowolnej chwili modyfikując ustawienia przeglądarki. Korzystanie z tej strony bez zmian ustawień dotyczących cookies oznacza, że będą one zapisane w pamięci urządzenia.

rozumiem